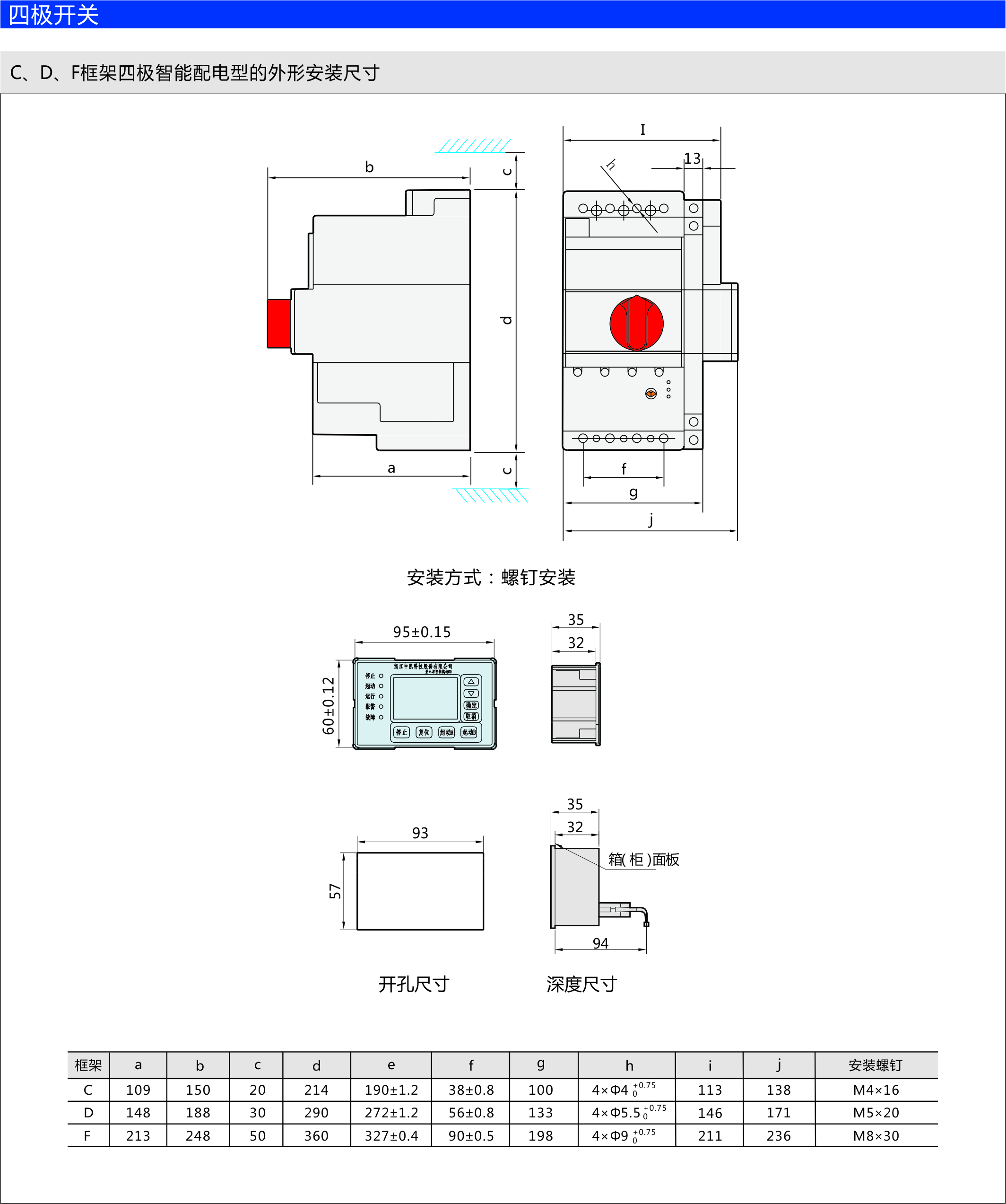
KB0-T/43智能配電型產品具有三相電流、剩余電流、故障記錄等測量功能;熱過載、過流、短路、接地故障、剩余電流等保護功能;開關量輸出等控制功能;起動、停止、復位、測試等按鍵功能;通訊功能、模擬量輸出功能、重合閘功能等。
KB0系列控制與保護開關電器技術樣本
銷售:客服QQ一
銷售:客服QQ二
技術:客服QQ三
在線時間
9:00-17:00